



Let Agreed
The Cedars, 39 Pickersleigh Road, Malvern, Worcestershire, WR14 2RW
The Cedars, 39 Pickersleigh Road, Malvern, Worcestershire, WR14 2RW
Monthly
£925
BEDROOM1
BATHROOM1
RECEPTION1
Malvern Link
Modern Apartment
Ground Floor
Private Patio Garden
Open Plan Kitchen and Living Area
Modern Kitchen
Modern Bathroom
Large Double Bedroom
Property Info
Map
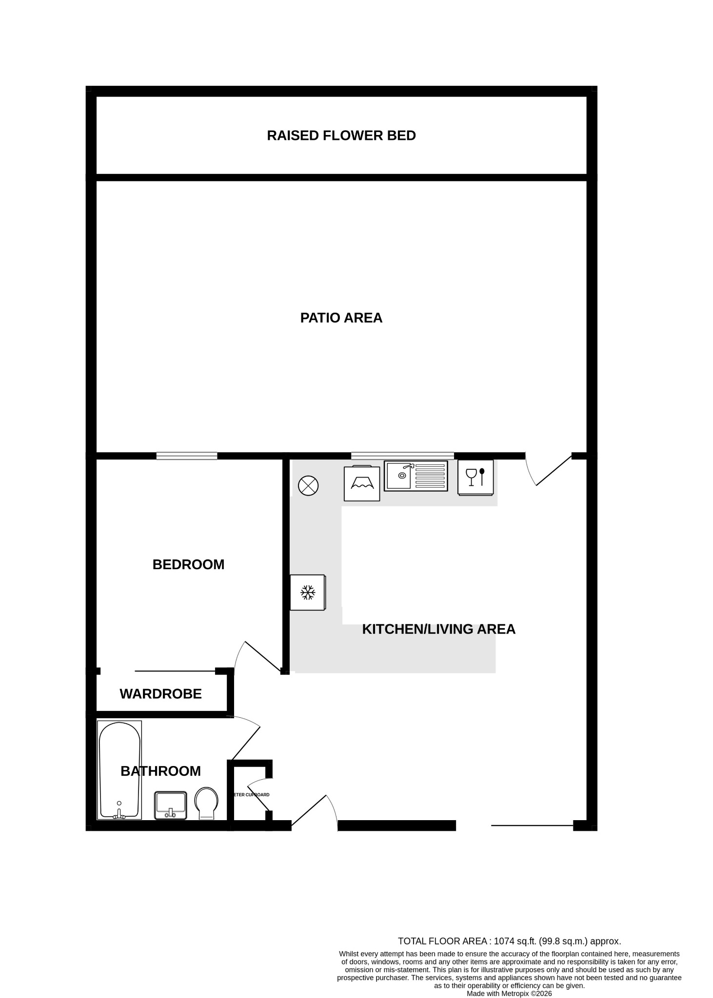
Floor Plan
Media
Description
Location
Malvern Link was the key site of the Romano-British pottery industry that produced Severn Valley Ware and is separated from Great Malvern by the Link Common protected by the Malvern Hills Conservators. Malvern Link is an established residential location and is home to the renowned Morgan Motor Company manufacturer of luxury sports cars and Chance Brothers the remaining factory of what was once the largest manufacturer of glassware in the UK. It has excellent bus; rail and road networking with a railway station conveniently situated on the Worcester Road the A449 which continues through the link and its numerous facilities and local businesses to the Malvern Retail Park and directly into Worcester City Centre some eight miles to the east connecting to the M5 motorway network. The Property is also conveniently situated within a short distance of three Primary Schools, two nursery's and a range of local shops, hairdresser and post office. Great Malvern town centre is situated half a mile away and comprises of two main streets, the steep Church Street and Belle Vue Terrace offering a further selection of shops servicing every day needs, banks, main post office, Waitrose supermarket, and a large choice of eateries, cafes and bars. Great Malvern also has in its centre a public library, public swimming pool and fitness facilities and Priory Park which attaches to the Malvern Theatre complex offering the experience of nationally and internationally renowned plays, actors, classical and modern musicians alongside its own cinema.
Directions
From our office in Great Malvern proceed along Worcester Road into Malvern Link. At the traffic lights turn right onto Pickersleigh Road and follow till you turn right onto Cedar Avenue opposite the Morgan Car gates. Then take a right into the new development
Property Details
A modern ground floor apartment with open plan kitchen living space. A light and airy space with built in over, hob, dishwasher and fridge freezer. Large Double Bedroom and a modern Bathroom with a shower over the bath. Outside there is a private patio garden, allocated parking space and communal outdoor space.
EPChttps://find-energy-certificate.service.gov.uk/energy-certificate/0360-3841-3020-2409-2121
Property Information
Property Type
Flats / Apartments
Property Style
Apartment
Parking
Allocated Parking
Tenure Type
Freehold
Age Of Property
Modern Minimalist
Council Tax Band
C
Condition
Good
Letting Details
Date Available
20/02/2026
Let Type
Long Term
Deposit
£1,067
Furnish Type
Unfurnished
House Flat Share
No
Student Property
No
Contract Months
12
Additional Information
Heating
Gas Central
Mortgage Calculator
Stamp Duty Calculator
Mortgage Calculator
Property Price
£Deposit
£10%
Lenders may expect more than a 10% deposit
Annual Interest
Repayment Period (Years)
Monthly repayments: £5
Need more info? See ourMortgage guides and calculators.







